84件(会員物件 41件)
-
会員限定
-
- 都市ガス
- 床暖房
- 食器洗い乾燥機
- 浴室乾燥機
- 浴室1坪以上
- 温水洗浄便座
新築
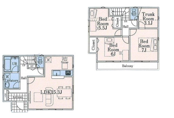
LDKを1階に置いた王道の生活動線で、毎日の出入りや家事がスムーズに回る間取りです。LDKは14.73帖で床暖房付き。2階は約6.33帖・5.33帖・5.25帖の3部屋がそろい、子ども部屋や在宅ワークなど、ライフスタイルに合わせて使い分けしやすい構成です。耐震等級3、省令準耐火構造、省エネ適合住宅など基本性能も充実し、外壁は光セラ仕様。周辺にはコンビニや郵便局、中学校も近く、日々の暮らしやすさもポイントです。
-
- 駐車2台可
- 都市ガス
- ウォークインクロゼット
- システムキッチン
- カウンターキッチン
- 浴室乾燥機
動画
パノラマ
新築
アクセスはJR中央線「三鷹」駅/京王線「調布」駅へバス利用、停留所まで徒歩3分。駅まで出やすいのに、周辺は生活施設がまとまっていて“寄り道少なめ”が叶う立地です。徒歩3分にセブンイレブン、徒歩5分にグルメシティとサンドラッグ、徒歩7分に図書館、徒歩10分に深大寺北町公園。買い足し・薬・子どもの気分転換まで、用事が一度で済みやすいのが嬉しいポイント。室内はLDK約15.2帖の対面キッチンで、料理中も家族の様子が見やすく会話が自然に増えます。2階は収納充実の洋室があり、服も季節物も“しまう場所に迷わない”暮らしへ。
-
- 都市ガス
- バリアフリー
- ウォークインクロゼット
- システムキッチン
- カウンターキッチン
- 食器洗い乾燥機
新築
駅近で、通勤も買い物も動きやすい立地が魅力の新築プラン。西武多摩川線「新小金井」徒歩10分/JR中央線「東小金井」徒歩13分と、行き先で路線を選べるのが嬉しいポイントです。
間取りは、家族が集まるLDK約13.5帖に対して、2階に洋室3部屋を確保。主寝室(約6.13帖)に加え、WICがあるので衣類の“集約収納”ができ、各部屋を広く使いやすい設計です。さらにロフト約5.25帖が、収納・ワーク・趣味スペースなど“プラスαの居場所”として活躍。
設備も食洗機など家事ラク要素が入っていて、忙しい30代ファミリーの毎日にフィットする一邸です。 -
- 都市ガス
- システムキッチン
- カウンターキッチン
- 食器洗い乾燥機
- 浴室乾燥機
- バルコニー
新築
居室上部に吹き抜けを設け、明るさと縦の広がりを感じられる空間設計。ロフトも備えており、収納だけでなく在宅ワークやお子様の秘密基地など多用途に使えます。LDKと水回りが近く、家事効率にも配慮された間取りは、共働き・子育て世帯にとって現実的な魅力。徒歩圏内に小中学校が揃い、毎日の通学が負担になりにくい点も安心材料です。限られた敷地の中で、暮らしやすさと楽しさを両立した住まいです。
-
NEW
6,499万円
64.27㎡ (3LDK) /築26年
- エレベーター
- 都市ガス
- システムキッチン
- 温水洗浄便座
- 浴室乾燥機
- 追焚機能浴室
新規内装リフォーム予定物件です。現空につき内覧いつでもどうぞ!内覧のご予約お待ちしております。お電話でのご予約は⇒0120-20-0148
-
- 都市ガス
- カウンターキッチン
- 食器洗い乾燥機
- 浴室乾燥機
- 浴室1坪以上
- バルコニー
動画
パノラマ
新築
JR中央線「東小金井」駅まで徒歩18分、西武多摩川線「新小金井」駅まで徒歩11分と、都心へのアクセスも良好。
家族が集うリビングは吹抜け天井を採用した開放的なLDK17.3帖。自然光がたっぷり入り、ゆとりある空間を演出します。
各居室も5帖以上を確保し、収納もしっかり備えた住みやすい設計。
駐車スペースも完備で、マイカー利用の方にも安心です。
さらに、フラット35S金利優遇に対応し、断熱等性能等級4や一次エネルギー消費量等級4といった省エネ性能も充実。
快適性と経済性を兼ね備えた長く安心して暮らせる住まいです。 -
- 都市ガス
- 公共下水
新築
LDKを中心に生活動線が整えられた3LDKの住まいです。リビング階段を採用し、家族が自然と顔を合わせやすい空間構成。ロフトが設けられており、季節物や趣味用品などの収納スペースとして活用しやすい点も特徴です。
全居室が二面採光となっているため、時間帯によって異なる光を取り込みやすく、明るさを感じやすい室内環境。2階には複数の洋室が配置され、家族それぞれの個室として使い分けが可能です。徒歩圏に小学校や公園があり、日常生活に取り入れやすい立地。暮らしやすさと空間効率を意識した住まいです。 -
- 駐車2台可
- 都市ガス
- 床暖房
- ウォークインクロゼット
- システムキッチン
- カウンターキッチン
新築
LDKは約16.5帖の広さがあり、隣接する約3.1帖のスペースと合わせて、用途に応じた使い分けがしやすい空間構成。キッチンからリビング全体を見渡しやすく、家事をしながら家族の様子を感じやすい間取りです。
2階には洋室が複数配置され、全居室5帖以上を確保。主寝室にはウォークインクローゼットが設けられ、衣類や生活用品をまとめて収納できます。さらに納戸も備えられており、季節物や日用品の整理にも対応しやすい設計。駐車スペースは2台分が確保され、生活動線と収納計画のバランスを意識した住まいです。 -
- 都市ガス
- 床暖房
- バリアフリー
- システムキッチン
- カウンターキッチン
- 食器洗い乾燥機
新築
3LDKにフリースペースを備えた間取りは、将来の家族構成の変化にも対応しやすい設計。お子様の成長に合わせた学習スペースやワークスペースとして活用でき、使い方の幅が広がります。LDKを中心に配置したプランで、家族が自然と顔を合わせやすい動線。各室に収納を設け、生活空間をすっきり保ちやすい住まいです。カースペースは2台可(車種による)で日常使いにも便利です。
-
- 駐車2台可
- 都市ガス
- 床暖房
- バリアフリー
- システムキッチン
- カウンターキッチン
新築
4LDKのゆとりある間取り設計で、ご家族それぞれのプライベート空間をしっかり確保。LDKを中心に居室を配置することで、家族の気配を感じながら暮らせる住まいです。各室に収納を備え、荷物が増えても整理整頓しやすいプラン。カースペースは2台可(車種による)で、日常の使い勝手にも配慮されています。長期優良住宅認定取得で、将来を見据えた安心感のある新生活をスタートできます。
-
- 都市ガス
- 床暖房
- バリアフリー
- システムキッチン
- カウンターキッチン
- 食器洗い乾燥機
新築
3LDKのバランスの取れた間取り設計。LDKを中心に各居室へアクセスできる動線は、家族が自然と顔を合わせやすく、日々の暮らしをスムーズにします。各室に収納を備え、整理整頓しやすい住空間を実現。子育て世帯にも使いやすいプランです。カースペースは2台可(車種による)で、日常の利便性にも配慮された住まい。長期優良住宅認定取得で、安心感のある新生活をスタートできます。
-
- 駐車2台可
- 都市ガス
- 床暖房
- バリアフリー
- システムキッチン
- カウンターキッチン
新築
3LDKのバランスの取れた間取り設計。LDKを中心に居室を配置することで、家族が自然と顔を合わせやすい動線を実現しています。各居室に収納を備え、子育て世帯でも整理整頓しやすい住空間。生活の中心となるLDKを軸に、家族それぞれの時間も大切にできる住まいです。カースペースは2台可(車種による)で、日常使いにも来客時にも安心。長期優良住宅認定取得の安心感も魅力です。
-
- 駐車2台可
- 都市ガス
- カウンターキッチン
- 食器洗い乾燥機
- 浴室乾燥機
- 浴室1坪以上
新築
対面式キッチンはお料理をしながらリビングの様子を伺う事が出来るので、小さなお子様がいらっしゃるご家庭にも人気です。
家事の時短に欠かせない、忙しいパパ・ママも嬉しい食洗器も完備。
雨の日や湿気が多い日のお洗濯の強い味方、浴室乾燥機付きのバスルーム。
小屋裏収納やロフトは季節ものの収納に威力を発揮します。 -
- 都市ガス
- 床暖房
- バリアフリー
- システムキッチン
- カウンターキッチン
- 食器洗い乾燥機
新築
3LDKにフリースペースを備えた間取りは、家族構成の変化に柔軟に対応できる設計。お子様の遊び場やワークスペース、収納コーナーなど用途を限定しない空間があることで、暮らしの幅が広がります。LDKを中心に居室を配置し、家族が自然と顔を合わせやすい動線。各室に収納を確保し、すっきりとした住空間を保ちやすいプランです。カースペースは2台可(車種による)で、日常使いにも来客時にも安心です。
-
会員限定
-
NEW
8,380万円
79.38㎡ (3LDK) /予定
- 駐車2台可
- 都市ガス
- 床暖房
- システムキッチン
- カウンターキッチン
- 食器洗い乾燥機
新築
全室南向きの明るさが魅力。LDK約18.1帖に高天井を採用し、開放感のある住空間が広がる新築戸建です。グルニエを備え、収納量にも配慮。耐震等級3取得の木造省令準耐火構造で、住まいの基本性能も整っています。お問い合わせは⇒0120-20-0148 ※お電話の際は『ホームページを見た』とお伝えください。
-
- 都市ガス
- システムキッチン
- カウンターキッチン
- 浴室乾燥機
- 浴室1坪以上
- バルコニー
新築
京王線「東府中」駅、JR中央線「武蔵小金井」駅へバス利用可能、浅間山公園停留所まで徒歩5分の立地。通勤・通学だけでなく、日々の外出にも使い分けができる交通環境です。LDKは約16.6帖、キッチンからリビング全体が見渡せ、家事をしながら家族の様子を感じられる配置。2階には洋室3部屋を確保し、子どもの成長やライフスタイルの変化にも対応できます。ロフト付きで季節物の収納にも便利。庭付き一戸建てのため、外遊びや家庭菜園など住まいの楽しみ方が広がります。
-
- 駐車2台可
- 都市ガス
- システムキッチン
- カウンターキッチン
- 浴室乾燥機
- 浴室1坪以上
新築
京王線「東府中」駅、JR中央線「武蔵小金井」駅へバスアクセス可能、浅間山公園停留所まで徒歩5分。LDKは約19帖の広さがあり、食事・くつろぎ・家事のスペースを分けやすい設計です。2階には洋室3部屋を配置し、子ども部屋や在宅ワークなど多目的に活用可能。ロフト付きで収納力も確保されています。カースペース2台分(車種による)を備えており、来客時や将来の使い方にも柔軟に対応。家族の暮らしを長く見据えた一戸建てです。
-
会員限定
-
- 都市ガス
- バリアフリー
- システムキッチン
- カウンターキッチン
- 浴室乾燥機
- 浴室1坪以上
新築
JR中央線「武蔵小金井」駅徒歩19分。バス利用もでき、毎日の移動に選択肢が広がります。
全居室南向きの3LDK。LDKは18.1帖、対面キッチンで会話が弾む空間に。洗面室はキッチンからも出入りできる2WAY設計で、帰宅後の手洗い〜入浴、朝の身支度まで動線がスムーズです。
2階は6帖以上の洋室を2部屋含む3室。各室収納+バルコニー付きで、寝室・子ども部屋・在宅スペースまで使い分け◎
前原小学校徒歩6分/南中学校徒歩3分、コープみらい徒歩5分と、子育て・買物環境も整います。 -
- 都市ガス
- バリアフリー
- システムキッチン
- カウンターキッチン
- 浴室乾燥機
- 浴室1坪以上
新築
ワンフロアでつながるLDKは、対面キッチン採用で配膳も会話もスムーズ。各居室はバルコニーに面し、明るさと通風を確保した3LDKプランです。JR中央線「武蔵小金井」駅徒歩19分(約1,495m)に加え、バス9分+停歩5分でアクセスの選択肢も。前原小学校徒歩6分(約450m)、南中学校徒歩3分(約180m)で子育てにも安心。住宅性能表示制度にて最高等級取得で、住まいの品質も魅力です。
-
会員限定
-
- 都市ガス
- リフォーム済
- ウォークインクロゼット
- システムキッチン
- 食器洗い乾燥機
- 浴室乾燥機
賑わいのある北口エリアを抜けた先、落ち着いた住環境で暮らせる一邸。国分寺駅まで徒歩14分、駅まで平坦なのも嬉しいポイントです。2020年8月築、2025年6月にリフォーム完了済みで、全室壁・天井クロス張替やトイレ設備交換、玄関タイル新規設置など、気持ちよく新生活を始められる内容。
室内は、天井が高く明るいリビングが主役。17.2帖のLDKは段差を付けた設計で、食事とくつろぎの“場”が自然に分かれて過ごしやすい間取りです。3.2帖の踊り場は書斎コーナーにも◎。WIC付きで衣類や季節物もすっきり。さらに自転車も置ける広い玄関、眺めるお庭付きの廊下、爽やかなブルータイルの洗面室など、細部まで“オンリーワン”が詰まっています。
セブンイレブン徒歩4分、まいばすけっと徒歩5分、オーケー徒歩8分、第七小学校徒歩10分・第二中学校徒歩9分で、生活利便も整っています。 -
会員限定
-
会員限定
-
会員限定
-
NEW
5,880万円
83.94㎡ (3LDK) /築5年
- 都市ガス
- システムキッチン
- カウンターキッチン
- 食器洗い乾燥機
- 浴室乾燥機
- 浴室1坪以上
2021年2月築、最高耐震等級3を取得した安心設計の戸建住宅。地震への備えを重視した構造で、長く安心して暮らせる住まいです。LDKは家族が集まりやすいレイアウトで、日常の会話が自然と生まれる空間構成。室内には国産材を使用し、明るくやさしい雰囲気に仕上げられています。各居室もしっかり確保されており、子ども部屋や在宅ワークスペースとしても使いやすい間取り。深大寺エリアの落ち着いた住環境で、安心を重視した住まいを探しているご家族におすすめです。
-
- 都市ガス
- システムキッチン
- カウンターキッチン
- 食器洗い乾燥機
- 浴室乾燥機
- 浴室1坪以上
新築
落ち着いた住宅街に建つ3LDK。南西角地の開放感を活かしつつ、1階はLDK約15.7帖を中心に、家族が自然と集まる住空間を確保しています。2階は3部屋構成(約7.0帖・約6.9帖・約5.0帖)で、子ども部屋・寝室・在宅ワークなどライフスタイルに合わせて使い分けしやすいのが魅力。各居室に収納があり、日々の片付けも進めやすい設計です。アクセスは京王線「調布」駅、JR中央線「武蔵境」駅へバス便利用可。学区は大沢台小学校・第七中学校が明記されており、子育て環境のイメージも持ちやすい物件です。JIOによる建物10年保証付き。

JR中央線と西武新宿線の2路線が利用しやすく、バス利用で駅アクセスを確保できる立地に計画された新築戸建です。ロフトを備えた3LDKの間取りは、季節用品や思い出の品をまとめて収納でき、居室をすっきり保てるのが魅力。太陽光発電を採用しているため、日々の電力を自宅でまかなえる点も家計面で安心です。LDKを中心に生活が完結しやすい構成で、家事の合間に家族の様子を見守りやすく、子育て世帯にちょうどいい住まいです。