三鷹市大沢5丁目 京王線 西調布駅 新築戸建 1号棟
4,890万円
京王線「西調布」駅バス4分「大沢コミュニティセンター」停歩9分
西武多摩川線「多磨」駅徒歩28分
京王線「調布」駅バス11分小田急バス「大沢グランド入口」停歩5分
【外観】
- 価格
- 4,890万円
- 間取り
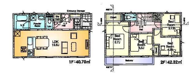
- 4LDK
- 土地面積
- 109.02㎡
- 建物面積
- 83.02㎡
- 築年月
- 2025年10月(新築)
-
カウンターキッチン
-
浴室乾燥機

リビング
キッチン
風呂
洋室
バルコニー- 販売戸数
- -
- 総戸数
- 5戸
- 間取り / 詳細
- 4LDK
- 向き
- 南
- 建物面積(坪数)
- 83.02㎡(25.11坪)
- 土地面積(坪数)
- 109.02㎡(32.97坪)
- 建ぺい率 /
容積率 - 40%/80%
- 築年月
- 2025年10月(新築)
- 駐車場 /
月額料金 - 有(1台) 0円 駐車台数は車種により、表示台数を必ず駐車できることを保証するものではありません。
- 土地権利
- 所有権
- 土地
(敷金 / 保証金) - - / -
- 建物構造
- 木造 / 2階建
- 傾斜地部分面積
- -
- 路地状敷地
- -
- 私道負担面積
- 28.60㎡
- セットバック
- 無
- 高圧線下面積
- -
- 施工会社
- -
- 用途地域
- 第一種低層住居専用
- 地目 / 地勢
- 宅地 / -
- 接道状況
- 一方(東 私道 5.0m)
- 国土法届出要否
- 不要
- 都市計画
- 市街化区域
- 総区画数 /
販売区画数 - 5区画/-
- 現況
- 完成済み
- その他
法令上の制限 - 宅地造成及び特定盛土等規制法
- 取引態様
- 仲介
- 引渡し
- 相談
- 取引条件の
有効期限 - 2026年01月30日
- 設備条件
-
- カードキー / フローリング / バルコニー / 都市ガス / 公営水道 / 公共下水 / 24時間換気システム / システムキッチン / カウンターキッチン / 追焚機能浴室 / 浴室乾燥機 / 温水洗浄便座 / 洗髪洗面化粧台 / トイレ2ヶ所 / 浴室1坪以上 / 床下収納
- 設備(その他)
-
-
-
- 物件番号
- 96522144
- 管理コード
- 100136281307
- 建築確認番号
- 第R07SHC109355号
- 情報更新日
- 2026年01月17日
- 次回更新予定日
- 2026年01月30日
- 取扱会社
-
- アルカス住宅販売株式会社 三鷹本店
- 東京都三鷹市下連雀3丁目22-10 榎本ビル 1F
- TEL:0120-16-7779
- 東京都知事 (6) 第78525号
- 公益社団法人東京都宅地建物取引業協会
公益社団法人全国宅地建物取引業保証協会
旭化成不動産情報ネットワーク会員
- 備考
- 『アルカス会員専用物件』の中には、今お出ししている価格より【更に価格交渉可能】な物件もあるかも。
簡単な会員登録で検索物件数が大幅に増えます。表向きには広告できない値下げ交渉可能物件も会員様にはいち早くご連絡致します。
まだ会員登録がお済でない方は是非会員に。
三鷹・武蔵野・調布・中央線・京王線の物件はお任せください。
土曜、日曜、祝日には現地販売・見学会も開催中。お気軽にお越し下さい。
現地販売会情報 http://www.arukasu.co.jp/openhouse/ -
総合病院
長谷川病院
484m(7分)
-
コンビニエンスストア
ファミリーマート調布天文台通り店
713m(9分)
-
小学校
おおさわ学園 三鷹市立羽沢小学校
740m(10分)
-
保育園
椎の実子供の家
1012m(13分)
-
中学校
調布市立調布中学校
1036m(13分)
-
コンビニエンスストア
セブンイレブン三鷹大沢6丁目店
1039m(13分)
-
小児科
奥田医院
1096m(14分)
-
郵便局
三鷹大沢四郵便局
1161m(15分)
-
郵便局
神代植物公園前郵便局
1375m(18分)
-
ドラッグストア
サンドラッグ調布富士見町店
1380m(18分)
-
幼稚園
保恵学園
1502m(19分)
-
保育園
保恵学園保育所
1502m(19分)
-
中学校
おおさわ学園 三鷹市立第七中学校
1557m(20分)
-
保育園
大沢台保育園
1639m(21分)
-
郵便局
三鷹大沢郵便局
1774m(23分)
-
幼稚園
長久寺学園幼稚園
1847m(24分)
-
公園
武蔵の森公園
1915m(24分)
-
公園
都立野川公園
1927m(25分)
-
その他
味の素スタジアム
2172m(28分)
-
公園
神代植物公園
2723m(35分)
- 月々の支払額
- 9.6円
- 購入希望物件価格
-
万円
- 頭金
-
万円
- 金利
-
%
- 返済額(ボーナス1回分)
-
万円
- 返済期間
-
年
物件の特徴
セールスポイント
完成済みにつき内覧いつでもどうぞ!お問い合わせは⇒0120-20-0148 ※お電話の際は『ホームページを見た』とお伝えください。
ポイント
浄水器 2沿線利用可 整形地 対面式キッチン 三面鏡付洗面化粧台
担当者のコメント
パノラマ画像
基本情報
設備条件
その他
周辺施設
支払いシミュレーション
※ボーナスは自動で年2回分で計算されます。
近隣の物件
三鷹市大沢5丁目 京王線 西調布駅 新築戸建
4,890万円
-
4LDK(83.02㎡)
お気軽にお問い合わせください
アルカス住宅販売株式会社 三鷹本店
0120-16-7779
売買部 9:00~18:30/賃貸部 9:00~18:00
(休:毎週火曜・水曜日、夏季、冬季)

アルカス住宅販売 三鷹店
・フラット35S 金利Aプラン対応(住宅ローン控除対象)
・会話が弾むリビング階段&便利な収納スペース充実
・第三者機関評価「設計・建設性能評価」取得済みで安心の品質
・周辺にはスーパー・コンビニ・教育施設も揃い、生活利便性◎
「子育てグリーン住宅」対象棟あり!省エネ性能にも優れた未来型住宅
カースペース付き&前面道路広く駐車も楽々
――暮らしやすさ・安心・コスパを兼ね備えた三鷹の分譲住宅。
実際に見て触れて体感していただきたい住まいです!
内見予約・資料請求はお気軽にどうぞ。