【外観】
- 建物面積
- 89.10㎡
- 築年月
- 2025年9月(新築)
-
カウンターキッチン
-
浴室乾燥機

リビング
キッチン
風呂
洋室
バルコニー- 販売戸数
- -
- 総戸数
- 3戸
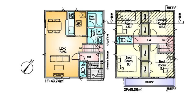
- 間取り / 詳細
- 3LDK+S(納戸)
S 4.5帖 1室 - 向き
- -
- 建物面積(坪数)
- 89.10㎡(26.95坪)
- 土地面積(坪数)
- 120.09㎡(36.32坪)
- 建ぺい率 /
容積率 - 40%/80%
- 築年月
- 2025年9月(新築)
- 駐車場 /
月額料金 - 有(2台) 0円 駐車台数は車種により、表示台数を必ず駐車できることを保証するものではありません。
- 土地権利
- 所有権
- 土地
(敷金 / 保証金) - - / -
- 建物構造
- 木造 / 2階建
- 傾斜地部分面積
- -
- 路地状敷地
- -
- 私道負担面積
- -
- セットバック
- 無
- 高圧線下面積
- 55.00㎡
- 施工会社
- -
- 用途地域
- 第一種低層住居専用
- 地目 / 地勢
- 宅地 / 平坦
- 接道状況
- 一方(東 公道 4.0m)
- 国土法届出要否
- 不要
- 都市計画
- 市街化区域
- 総区画数 /
販売区画数 - 3区画/-
- 現況
- 完成済み
- その他
法令上の制限 - -
- 取引態様
- 仲介
- 引渡し
- 相談
- 取引条件の
有効期限 - 2026年01月30日
- 設備条件
-
- フローリング / バルコニー / 都市ガス / 公営水道 / 公共下水 / 24時間換気システム / 駐車2台可 / システムキッチン / カウンターキッチン / 追焚機能浴室 / 浴室乾燥機 / 温水洗浄便座 / 洗髪洗面化粧台 / トイレ2ヶ所 / 浴室1坪以上 / 床下収納 / 複層ガラス
- 設備(その他)
-
-
-
- 物件番号
- 96567614
- 管理コード
- 100136280644
- 建築確認番号
- 第R07SHC106180号
- 情報更新日
- 2026年01月17日
- 次回更新予定日
- 2026年01月30日
- 取扱会社
-
- アルカス住宅販売株式会社 三鷹本店
- 東京都三鷹市下連雀3丁目22-10 榎本ビル 1F
- TEL:0120-16-7779
- 東京都知事 (6) 第78525号
- 公益社団法人東京都宅地建物取引業協会
公益社団法人全国宅地建物取引業保証協会
旭化成不動産情報ネットワーク会員
- 備考
- 『アルカス会員専用物件』の中には、今お出ししている価格より【更に価格交渉可能】な物件もあるかも。
簡単な会員登録で検索物件数が大幅に増えます。表向きには広告できない値下げ交渉可能物件も会員様にはいち早くご連絡致します。
まだ会員登録がお済でない方は是非会員に。
三鷹・武蔵野・調布・中央線・京王線の物件はお任せください。
土曜、日曜、祝日には現地販売・見学会も開催中。お気軽にお越し下さい。
現地販売会情報 http://www.arukasu.co.jp/openhouse/ -
スーパー
コルモピア深大寺
358m(5分)
-
スーパー
トップ深大寺
358m(5分)
-
コンビニエンスストア
セブンイレブン調布深大寺東5丁目店
369m(5分)
-
郵便局
調布深大寺郵便局
404m(6分)
-
ドラッグストア
マツモトキヨシ深大寺店
435m(6分)
-
スーパー
全日食チェーン深大寺店
746m(10分)
-
保育園
中原保育園
761m(10分)
-
公園
柴崎公園
860m(11分)
-
保育園
調布城山保育園
887m(12分)
-
幼稚園
マリアの園
896m(12分)
-
小学校
調布市立深大寺小学校
1038m(13分)
-
中学校
調布市立神代中学校
1108m(14分)
-
幼稚園
中原幼稚園
1174m(15分)
-
保育園
ぽけっとランド深大寺
1214m(16分)
-
郵便局
三鷹中原四郵便局
1251m(16分)
- 月々の支払額
- 9.6円
- 購入希望物件価格
-
万円
- 頭金
-
万円
- 金利
-
%
- 返済額(ボーナス1回分)
-
万円
- 返済期間
-
年
物件の特徴
セールスポイント
現地や施工例のご案内、プレゼンなど出来ます。お気軽にお問い合わせください。お問い合わせは⇒0120-20-0148 ※お電話の際は『ホームページを見た』とお伝えください。
ポイント
対面式キッチン 温水洗浄便座 玄関収納 複層ガラス オートバス
担当者のコメント
パノラマ画像
基本情報
設備条件
その他
周辺施設
支払いシミュレーション
※ボーナスは自動で年2回分で計算されます。
近隣の物件
調布市深大寺東町1丁目 京王線 つつじヶ丘駅 新築戸建
4,890万円
-
3LDK+S(納戸)(89.10㎡)
お気軽にお問い合わせください
アルカス住宅販売株式会社 三鷹本店
0120-16-7779
売買部 9:00~18:30/賃貸部 9:00~18:00
(休:毎週火曜・水曜日、夏季、冬季)

アルカス住宅販売 三鷹店
対面式キッチンはお料理をしながらリビングの様子を伺う事が出来るので、小さなお子様がいらっしゃるご家庭にも人気です。
雨の日や湿気が多い日のお洗濯の強い味方、浴室乾燥機付きのバスルームです。
太陽光パネル設置済み。
サービスルーム(納戸)は、採光量が規定に達しない為、表記上は納戸となっておりますが、洋室として機能する内装となっております。