【外観】
- 建物面積
- 90.05㎡
- 築年月
- 2026年1月(予定)
-
TVモニタ付きインターホン
-
カウンターキッチン
-
浴室乾燥機
- 販売戸数
- -
- 総戸数
- 3戸
- 間取り / 詳細
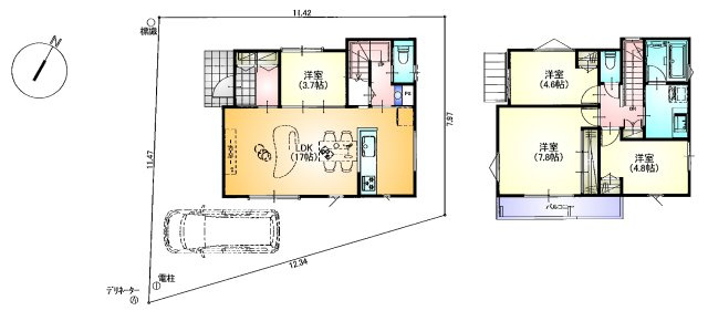
- 4LDK
- 向き
- 南
- 建物面積(坪数)
- 90.05㎡(27.24坪)
- 土地面積(坪数)
- 127.72㎡(38.63坪)
- 建ぺい率 /
容積率 - 40%/80%
- 築年月
- 2026年1月(予定)
- 駐車場 /
月額料金 - 有(2台) 0円 駐車台数は車種により、表示台数を必ず駐車できることを保証するものではありません。
- 土地権利
- 所有権
- 土地
(敷金 / 保証金) - - / -
- 建物構造
- 木造 / 2階建
- 傾斜地部分面積
- -
- 路地状敷地
- -
- 私道負担面積
- 10.16㎡
- セットバック
- 無
- 高圧線下面積
- -
- 施工会社
- -
- 用途地域
- 第一種低層住居専用/第一種中高層住居専用
- 地目 / 地勢
- 宅地 / 平坦
- 接道状況
- 一方(西 私道 4.0m)
- 国土法届出要否
- 不要
- 都市計画
- 市街化区域
- 総区画数 /
販売区画数 - 3区画/-
- 現況
- 未完成
- その他
法令上の制限 - 景観法/準防火地域/用途混在地域につき、建蔽率と容積率は案分で決定します。その為、表示の情報と異なる場合があります。敷地面積は共有地28.70㎡を含みます。
- 取引態様
- 仲介
- 引渡し
- 相談
- 取引条件の
有効期限 - 2026年02月27日
- 設備条件
-
- カードキー / フローリング / バルコニー / 都市ガス / 公営水道 / 公共下水 / 24時間換気システム / 駐車2台可 / システムキッチン / カウンターキッチン / 追焚機能浴室 / 浴室乾燥機 / 温水洗浄便座 / 洗髪洗面化粧台 / トイレ2ヶ所 / 浴室1坪以上 / 床下収納 / ウォークインクロゼット / TVモニタ付インターホン / 複層ガラス
- 設備(その他)
-
-
-
- 物件番号
- 98677144
- 管理コード
- 100136447880
- 建築確認番号
- 第25UDI1W建06633号
- 情報更新日
- 2026年02月13日
- 次回更新予定日
- 2026年02月27日
- 取扱会社
-
- アルカス住宅販売株式会社 三鷹本店
- 東京都三鷹市下連雀3丁目22-10 榎本ビル 1F
- TEL:0120-16-7779
- 東京都知事 (6) 第78525号
- 公益社団法人東京都宅地建物取引業協会
公益社団法人全国宅地建物取引業保証協会
旭化成不動産情報ネットワーク会員
- 備考
- 『アルカス会員専用物件』の中には、今お出ししている価格より【更に価格交渉可能】な物件もあるかも。
簡単な会員登録で検索物件数が大幅に増えます。表向きには広告できない値下げ交渉可能物件も会員様にはいち早くご連絡致します。
まだ会員登録がお済でない方は是非会員に。
三鷹・武蔵野・調布・中央線・京王線の物件はお任せください。
土曜、日曜、祝日には現地販売・見学会も開催中。お気軽にお越し下さい。
現地販売会情報 http://www.arukasu.co.jp/openhouse/ -
コンビニエンスストア
ファミリーマート三鷹台団地南店
143m(2分)
-
焼肉
牛角三鷹牟礼店
159m(2分)
-
スーパー
業務スーパー三鷹牟礼店
170m(3分)
-
その他
三鷹市東児童館
194m(3分)
-
歯科
柿の木歯科医院
208m(3分)
-
公園
牟礼下本宿児童公園
236m(3分)
-
スーパー
コープみらい-牟礼店
251m(4分)
-
寿司
はま寿司三鷹北野店
252m(4分)
-
ファーストフード
マクドナルド 東八道路牟礼店
326m(5分)
-
ドラッグストア
サンドラッグ三鷹牟礼店
450m(6分)
-
保育園
第二子羊チャイルドセンター
473m(6分)
-
小学校
東三鷹学園 三鷹市立北野小学校
492m(7分)
-
幼稚園
のぞみ幼稚園
494m(7分)
-
スーパー
サミット 三鷹台団地店
636m(8分)
-
ファミリーレストラン
ロイヤルホスト 牟礼店
712m(9分)
-
郵便局
三鷹牟礼二郵便局
721m(10分)
-
その他
どん亭三鷹店
769m(10分)
-
公園
牟礼の里公園
798m(10分)
-
中学校
東三鷹学園 三鷹市立第六中学校
828m(11分)
-
公園
牟礼ひばり野児童公園
949m(12分)
- 月々の支払額
- 9.6円
- 購入希望物件価格
-
万円
- 頭金
-
万円
- 金利
-
%
- 返済額(ボーナス1回分)
-
万円
- 返済期間
-
年
物件の特徴
セールスポイント
LDK約17.3帖を中心とした4LDKの住まい。居室配置と収納計画に配慮され、家族それぞれの空間を確保しやすい間取りです。敷地内に駐車スペースを備え、低層住宅が並ぶ落ち着いた住環境が広がります。
お問い合わせは⇒0120-20-0148 ※お電話の際は『ホームページを見た』とお伝えください。
ポイント
バルコニー カードキー 浴室1坪以上 対面式キッチン 24時間換気システム
担当者のコメント
基本情報
設備条件
その他
三鷹市牟礼5丁目 井の頭線 三鷹台駅 新築戸建の他の物件
周辺施設
支払いシミュレーション
※ボーナスは自動で年2回分で計算されます。
近隣の物件
三鷹市牟礼5丁目 井の頭線 三鷹台駅 新築戸建
8,698万円
-
4LDK(90.05㎡)
お気軽にお問い合わせください
アルカス住宅販売株式会社 三鷹本店
0120-16-7779
売買部 9:00~18:30/賃貸部 9:00~18:00
(休:毎週火曜・水曜日、夏季、冬季)

アルカス住宅販売 三鷹店
2階には複数の洋室が配置され、各居室に収納スペースを確保。家族構成やライフスタイルに合わせた使い分けが可能です。周辺は第一種低層住居専用地域の落ち着いた街並み。徒歩圏に教育施設や生活利便施設がそろい、日常生活を支える環境が整っています。